Descrizione
Situata nelle campagne di Gordola, la Residenza Alle Campagne gode di una posizione ottimale per raggiungere in pochi minuti a piedi tutto ciò di cui si ha bisogno, sempre rimanendo in tranquillità e sicurezza. Le scuole dell’obbligo si trovano tutte tra i 5 e i 13 minuti a piedi. La stazione FFS come anche il campo di calcio si trovano ad appena 5 minuti di distanza. Il Centro Sportivo di Tenero ed il entro Commerciale Coop si possono invece raggiungere con una passeggiata di 15 minuti. Il famoso Ponte dei Salti in Valle Verzasca è raggiungibile in soli 20 minuti di auto.
Le caratteristiche principali:
- La tranquillità della campagna
- 4 piccole unità con 7 appartamenti ciascuna
- Piccolo parco immerso nel verde
- Terrazze coperte
- Solo residenza primaria
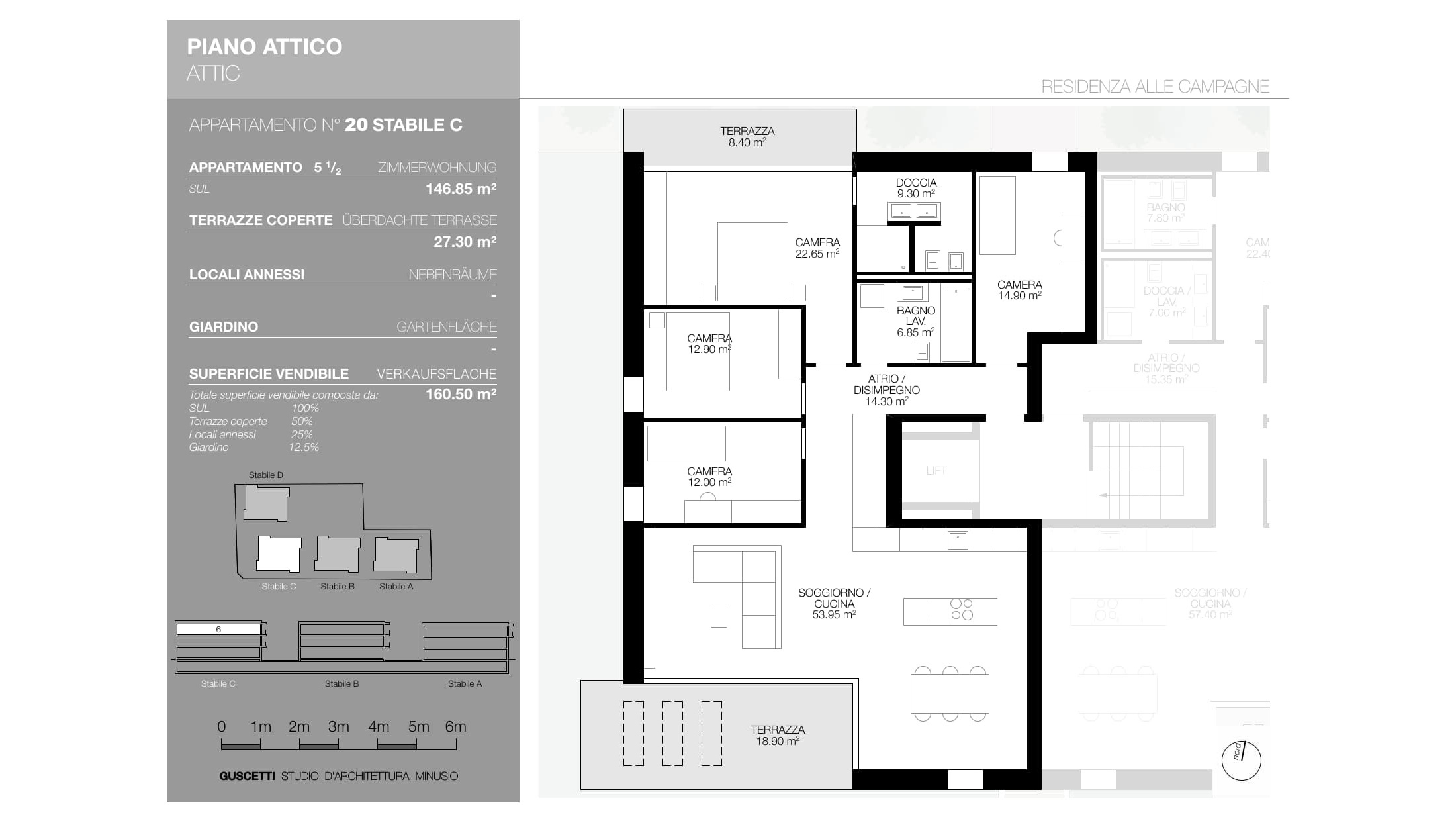
La Residenza alle Campagne sarà costituita da quattro piccole unità, ciascuna composta da cinque appartamenti e due esclusivi attici. Il taglio degli appartamenti varia da 2 ½ a 5 ½ locali. La Residenza è caratterizzata da design e materiali ricercati, soggiorni generosi, cucina con isola e terrazze coperte.
L’architettura esterna prevede beton facciavista e parapetti in vetro. Il progetto prevede anche la creazione di un piccolo parco. È inoltre possibile personalizzare l'appartamento secondo i propri desideri scegliendo tutte le finiture interne. Ogni appartamento dispone di una cantina al piano autorimessa. I bagni e le cucine sono definiti insieme al cliente e costruiti su misura, garantendo un tocco di classe al proprio appartamento di lusso. Per garantire la massima privacy e tranquillità facciamo particolarmente attenzione all’ottima isolazione termica e fonica della costruzione. Il riscaldamento con pompa di calore e i pannelli solari fanno sì da contenere i costi. Su richiesta può essere installato un sistema di raffrescamento ibrido che combina un sistema di circolazione di acqua fredda nelle serpentine e l’installazione di un’unità di aria condizionata come supporto al sistema di raffrescamento a pavimento.
Comodità
Dintorni
- Verdeggiante
- Negozi
- Negozi di prima necessità
- Banca
- Posta
- Ristorante(i)
- Farmacia
- Stazione
- Fermata Bus
- Entrata/uscita autostrada
- Adatto ai bambini
- Parco giochi
- scuola infanzia
- Scuola primaria
Esterno
- Parcheggio
- Garage
Interno
- Accesso persone disabili
- Ascensore
- Parcheggio sotterraneo
- Cucina abitabile
- Cucina aperta
- Luminoso
- Continuato
- Luce naturale
Dotazione
- Cucina attrezzata
Stato
- Nuovo
Esposizione
- Sud
Luce del sole
- Tutto il giorno
- Mattutino
- In serata
Vista
- Bella vista
- Rurale
Stile
- Moderno












